Bosvilla 'Special' bouwnummer 4: vrijstaande villa van 200m².

Verkoopstukken

Zeldzaam.

Vrijstaande bosvilla’s in Capelle aan den IJssel zijn zeldzaam. De Bosvilla ‘Special’ bouwnummer 4 voegt daar iets unieks aan toe. Deze royale villa van meer dan 200 m² ligt met de tuin direct aan het Schollebos, middenin het groen. Dankzij de uitbouw en dakkapellen geniet u van extra leefruimte, meer licht en een luxe uitstraling.

Met deze bosvilla verdeeld over drie woonlagen woont u hier energieneutraal (A++++), met een eigen oprit, volop ruimte voor zes kamers én het Capelse Schollebos als achtertuin. En dat alles op nog geen kwartier rijden van hartje Rotterdam.

Groen. Rust. Vrijheid.

Op zoek naar ruimte in een groene omgeving, maar toch dichtbij alles?

De bosvilla’s zijn luxe vrijstaande woningen pal naast het Capelse Schollebos. Door het contrasterend metselwerk hebben de woningen een luxe maar ook stoere uitstraling. Bovendien heeft u met drie woonlagen alle ruimte die u nodig heeft.

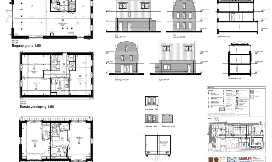
Op de begane grond vindt u een zeer ruime leefverdieping. Er zijn ramen aan voorkant en zijkant en een grote openslaande pui aan de achterkant waardoor u zo de tuin inloopt. Vanuit uw tuin ziet u alleen maar groen en hoort u de vogels fluiten. De berging is handig voor uw fietsen en tuinspullen.

Op de eerste verdieping is de royale Master Bedroom met inloopkast en ensuite badkamer. Verder zijn er nog twee zeer royale slaapkamers en een grote badkamer met optioneel een ligbad. Op de tweede verdieping is nog een grote zolderverdieping, met de mogelijkheid om twee extra kamers te realiseren.

Energieneutraal.

Hoe meer plussen, hoe energiezuiniger de woning is. De woningen in de tweede fase van Boss hebben energielabel A++++ met prestatiegarantie. Dat betekent dat de woning energieneutraal is, waar u bovendien maar liefst 10 jaar garantie op krijgt. Dat is goed voor het milieu en voor uw portemonnee. De woningen worden opgeleverd met een klimaatsysteem van Klimaatgarant. Bij aanschaf van een woning kunt u zelf bepalen of u het systeem wilt huren of kopen.

Het A++++-label is niet alleen een teken van goede isolatie, wat zorgt voor een hoog wooncomfort en een lagere energierekening. Het kan er ook voor zorgen dat u fors meer kunt lenen. Ook kunt u bij veel banken rentekortingen krijgen op uw hypotheek.

Afwerking.

SieMatic staat voor kwaliteit, design en innovatie. Met de uitvinding van de greeploze keuken heeft SieMatic wereldwijd de norm bepaald voor productdesign. Bij de koop van een vrijstaande woning in de tweede fase is een keukencheque inbegrepen van Siematic Keukens Rotterdam Alexandrium t.w.v.  €10.000,- euro.

De badkamer en de toiletruimte worden voorzien van prachtige tegels van Lingen keramiek in de maat 60 x 60 cm op de vloer en 30 x 60 cm op de wand. Er wordt sanitair geplaatst van het hoogwaardige Villeroy en Boch.

Vragen?









Plattegronden.

In het kort:

  • Bouwnummer : 4
  • Koopsom : € 1.080.000,- V.O.N.
  • Soort woning : vrijstaand
  • Woonoppervlak : vanaf 200 m²
  • Bruto woninginhoud : circa 701 m³
  • Tuinoppervlak totaal : circa 151 m²
  • Ligging achtertuin : NW
  • Kavelgrootte : circa 231 m²
  • Kamers : 6
  • Parkeren : 1 parkeerplaats op eigen terrein
  • 'Special' optie 1 : 4 dakkapellen
  • 'Special' optie 2 : uitbouw (1,20m)
  • 'Special' optie 3 : extra badkamer op zolder (casco)
  • 'Special' optie 4 : extra toilet op zolder (casco)
download plattegronden
Lees meer
naar boven